1. Giới Thiệu
Thư viện Khoa học Tổng hợp Thành phố Hồ Chí Minh (trước 1975 có tên là Thư viện Quốc gia). Tọa lạc tại Quận 1, Thành phố Hồ Chí Minh. Thư viện khánh thành ngày 23/12/1971 và bắt đầu phục vụ người đọc vào đầu năm 1972.

2. Quy Hoạch Tổng Thể:
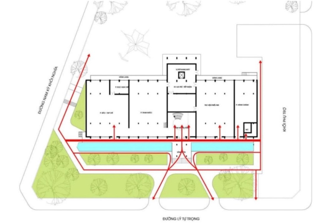
Công trình có mặt chính trải dài, quay về Tây Bắc, mặt đứng sau quay về hướng Đông Nam. Căn cứ trên biểu đồ mặt trời của khu vực TP.HCM ta thấy rằng, hướng tây bắc có cường độ ánh sáng tự nhiên tương đối đồng đều trong mỗi ngày, các KTS đã sử dụng hệ thống lam hoa trên mặt đứng để che chắn bức xạ nắng nóng vào buổi chiều. Đồng thời phòng đọc là không gian mở với hai hàng cửa sổ rộng thoáng cả 2 mặt, tạo điều kiện thông gió xuyên phòng, nên công trình vẫn tận hưởng được luồng gió mát thổi từ hướng Đông Nam. Thêm nữa, việc khối đọc bố trí dọc theo trục đường Lý Tự Trọng đã tận dụng được một khoảng đệm cây xanh lớn của khu vực trung tâm Sài Gòn. Cùng với hệ thống cây xanh sân vườn, mặt nước, tổng thể công trình có mối liên hệ chặt chẽ với cảnh quan khu vực, thể hiện mối giao hòa với thiên nhiên của một công trình kiến trúc nhiệt đới đặc trưng.
Các giải pháp quy hoạch tổng thể đã cho thấy có một sự cân bằng, hài hòa giữa khí hậu và công trình kiến trúc. Sự cân bằng này chính là sử dụng yếu tố truyền thống công trình kiến trúc hài hòa, gắn kết với thiên nhiên mà vẫn mang lên mình vẻ hiện đại.
3. Giải Pháp Tổ Chức Không Gian Và Hình Khối:
Các kiến trúc sư đã sử dụng thủ pháp tổ hợp hai tuyến “ngang” và “đứng” tương ứng với hai hình khối chức năng chính của công trình là khối đọc và khối lưu trữ. Không gian sảnh chính của khối đọc.

Ta thấy rằng, đường hành lang là một trong những yếu tố rõ nét nhất tương đồng với kiến trúc truyền thống của Việt Nam. Không gian hành lang đóng vai trò là một khoảng đệm, vừa có tác dụng cải thiện vi khí hậu, vừa là không gian liên kết các khu vực chức năng; Tạo ra lớp trong – lớp ngoài được ví như “tà áo dài của người phụ nữ Việt Nam”.

Khối đọc gồm các chức năng: phòng đọc – mượn, phòng báo – tạp chí, phòng đọc chuyên biệt… Các chức năng được bố cụ dàn trải theo tuyến và kết nối với nhau, thông qua hành lang bên và khu vực sảnh chính.

Các khối chức năng lớn của công trình có sự liên thông trên – dưới, trong – ngoài bởi hệ thống cầu thang, các khoảng thông tầng. Địa hình sân mặt chính của công trình cao hơn sân phía sau, tạo ra một lợi thế tách biệt không gian Văn phòng quản lý với không gian đọc. Hệ thống cửa đi, cửa sổ được bố trí xuyên suốt trải dài ở các mặt tường, làm cho không gian thông thoáng và tràn đầy ánh sáng.
Khối lưu trữ được bố trí tại gần vị trí trung tâm của khối đọc, với chiều cao 14 tầng, có lối tiếp cận riêng biệt và chức năng chính là: phân phối, bảo quản, lưu trữ,… các tài liệu. Không gian phòng lưu trữ lấy sáng gián tiếp và vừa đủ từ những băng cửa nhỏ, tránh các tia nắng trực tiếp.

Tổ hợp hình khối của công trình không theo kiểu đối xứng thường thấy của ngôi nhà truyền thống hay các cơ quan công quyền lúc bấy giờ. Khối lưu trữ, và sảnh chính được đặt lệch về một phía so với tâm của khối đọc. Với cách bố cục này đã tạo ra một tỷ lệ vàng “hoàn hảo”. Tạo được cảm giác thân thiện, hài hòa, trang trọng của một công trình công cộng.

thị và thiết kế tổng thể công trình kiến trúc. Phân tích mặt cắt cho thấy, khoảng sân trước được tính toán vừa đủ để nhìn thấy khối đọc mà không nhìn thấy khối kho lưu trữ hiện đại ở phía sau. Lúc này chỉ còn lại cái tĩnh tại, vẻ đẹp truyền thống: hàng hiên, lam hoa, cây xanh, mặt nước,…
Các chi tiết trang trí, hình thái kiến trúc của công trình đều được kế thừa từ kiến trúc truyền thống. Căn cứ trên cơ sở các mô típ trang trí được sử dụng có hình dáng, vị trí, chức năng tương đồng với các chi tiết trong kiến trúc truyền thống.
Hàng cột mặt tiền tách ra khỏi hệ lam hoa che nắng gợi nhớ hình ảnh hàng cột hiên được đặt lên mặt đá tảng, đồng thời hàng cột hiên kết hợp với mặt nước tạo sự liên tưởng về ngôi nhà sàn với kết cấu khung gỗ truyền thống.

Lam hoa mặt đứng nổi bật với các chi tiết hồi văn, chữ vạn, chữ thọ,… vừa gợi hình ảnh “bình phong” che chắn phía trước, vừa có chút phản phất hình ảnh “dãy cửa bức bàn” trải dài ở mặt chính công trình. Mảng lam hoa được chia thành 17 khoảng bởi 18 cột mặt tiền phía trước. Cấu trúc phân thành 2 lớp hoa văn tỷ lệ lớn – nhỏ lồng vào nhau.
Lớp hoa văn thứ nhất, có tác dụng như một hệ khung đỡ, được tạo thành bởi những mô đun (mỗi mô đun rộng 1.8m, dày 0.2m, gồm 4 thanh bê tông ghép lại), sắp xếp đan cài theo mô típ hình chữ công (工) truyền thống. Tiếp đó là lớp hoa văn chữ “Vạn”, chữ “Thọ” cách điệu, chi tiết hơn được chèn lần lượt vào những khung ô vuông do lớp thứ nhất tạo ra.
Như vậy, dưới hiệu quả của ánh sáng – bóng đổ, những mô đun bê tông tạo ra những đường phân mảng trên bề mặt, khiến cho bức tường hoa lam không bị rối rắm bởi tính chi tiết cao của hoa văn, đồng thời gắn kết được với sự đơn giản,
khúc chiết của các bộ phận khác trong tổng thể.

Nhìn chung tổng thể mặt đứng thể hiện sự hòa nhập hữu cơ giữa truyền thống và hiện đại. Bên cạnh đó, những thủ pháp này cũng phản ánh thái độ ứng xử của công trình đối với môi trường khí hậu nhiệt đới nóng ẩm mưa nhiều đặc trưng của Sài Gòn.
Chi tiết trang trí kỷ hà ở lan can, tay vịn, phù điêu rồng phượng, chi tiết hồi văn trên cửa sắt kính, là những mô típ trang trí quen thuộc trong nghệ thuật chạm trổ, điêu khắc truyển thống.
Có thể nói rằng mô típ trang trí là những yếu tố kế thừa từ kiến trúc truyền thống rõ nét nhất. Chúng được sử dụng nhiều, tô điểm cho không gian bên trong lẫn bên ngoài công trình, nhưng chủ yếu vẫn tập trung ở khối chính – khối đọc. Đối chiếu với các mô típ trong nghệ thuật truyền thống, ta có thể xếp các họa tiết trang trí trong công trình thư viện khoa học tổng hợp theo 3 nhóm chính: mô típ rồng – phượng; mô típ chữ; mô típ kỷ hà.
Mô típ rồng sử dụng trong công trình là kiểu mặt rồng chính diện, được lồng vào hệ lam bê tông mặt trước và sau của khối chính. Rồng xuất hiện khá nhiều trong kiến trúc cung điện, đền chùa,… Rồng là con vật đứng đầu trong tứ linh của Nho giáo, tương trưng cho quyền lực, đại diện cho vua chúa. Một ý nghĩa quan trọng nữa, thể hiện tư tưởng của Nho giáo trong dân gian, đó là sự đại diện cho hình ảnh “cá chép vượt vũ môn quan hóa rồng” thể hiện ý chí phấn đấu của các Nho sinh trong việc học tập, thi cử để đỗ đạt công danh. Khát vọng “hóa rồng” luôn được xem là lý tưởng mà người ta muốn đạt được đối với thế hệ con cháu ngàn đời sau.
Phượng hoàng là mô típ trang trí đặc trưng biểu thị tinh thần Nho giáo, tượng trưng cho vũ trụ, cho điềm lành, thái bình và phồn thịnh. Đặc biệt hình tượng “phượng hàm thư” trên mặt đứng bên của công trình (đường Nam kỳ khởi nghĩa) là chim phượng mang theo kinh thư thánh hiền, thường thấy trong những vị trí trang trọng gắn với gian thờ như trần thiết, cửa võng, hay nơi làm việc, nghỉ ngơi của vua chúa… tượng trưng cho sự anh minh, nhân hậu,…
HỌA TIẾT CHỮ THỌ.
Đây là mô típ phổ biến ở thời nguyễn, dùng trang trí bình phong, màn trướng, cửa sổ và các vật dụng nội thất,… chữ “Vạn” và chữ “Thọ” sử dụng trong công trình này cũng là hai chữ được sử dụng nhiều trong kiến trúc truyền thống với nhiều
biến thể đa dạng.
Chữ “Thọ” xuất phát từ Hán tự, hàm ý may mắn, Nó thường được lồng vào cửa sổ vuông hay tròn ở đình chùa, vừa có tác dụng như chấn song, vừa có tính trang trí hàm chứa ý nghĩa. Trong công trình thư viện khoa học tổng hợp thành phố Hồ
Chí Minh, chữ “Thọ” được dùng khá nhiều: trong hệ lam mặt đứng trước và sau, trang trí trần,… với các biến thể hình vuông và tròn.
Chữ “Vạn” thường được dùng làm nền như một mô típ kỷ hà. Trong công trình này, ta cũng thấy những cấu trúc hoa văn có dạng chữ “Vạn” trên hoa lam mặt đứng trước và sau, hay được trang trí ở các cột bên trong nội thất,… Chữ “Vạn” vồn
có nguồn gốc là biểu tượng của Phật giáo, biểu trưng cho trí tuệ quanh minh, sự thông thái của đức Phật.
Mô típ kỷ hà có dạng chữ X, chữ O, hay XO,.. Những mô típ này được sử dụng phổ biến trong kiến trúc cung đình thời Nguyễn, thường làm nền hay viền cho các nội dung trang trí chính.
Bên cạnh các mô típ truyền thống, các tác phẩm trang trí mang phong cách hiện đại như phù điêu ở mặt đứng sau ( khối lưu trữ) cũng được lồng ghép vào công trình Như vậy, ta thấy rằng, hầu hết các mô típ trang trí trong công trình đều liên quan đến tư tưởng Nho giáo.
Việc lựa chọn các mô típ này sẽ thuận lợi cho các KTS trong việc sử dụng các thủ pháp cách điệu, phù hợp với vật liệu và cách thi công hiện đại – mô đun hóa, thi công lắp ghép dễ dàng, tạo ra mối liên kết hữu cơ giữ chi tiết với công trình. Hay
nói cách khác, nó cũng là một biểu hiện của sự kết hợp hai yếu tố truyền thống và hiện đại.
4. Cách Thức Ứng Xử Với Môi Trường Khí Hậu Nhiệt Đới.

Nhiều khảo sát của ban quản lý thư viện cho thấy điều kiện ánh sáng bên trong công trình khá tốt. Đây là một kết quả quan trọng, bởi nó cho thấy kiến trúc đã hỗ trợ tốt cho công năng chính của thư viện – đọc sách. Đồng thời, kết quả này cũng thể hiện phần nào sự thành công của giải pháp xử lý vi khí hậu trong công trình có quy mô lớn như thư viện khoa học tổng hợp thành phố Hồ Chí Minh.

Không gian cao thoáng, liên thông, đa năng với cửa sổ mở lớn, trải dài ở các mặt đứng, thuận lợi cho gió xuyên phòng, đón gió mát từ phía Đông Nam,…
Hồ cảnh trải dài ở mặt đứng chính, mặt nước phía sau và hệ thống cây xanh sân vườn,… giúp hạn chế bức xạ mặt trời, điều hòa độ ẩm, góp phần cải thiện môi trường khí hậu xung quanh công trình. Ở khối phòng đọc, mỗi tầng đều có hành lang ( rộng 2m ), lam bê tông trải dài mặt trước lẫn mặt sau, tạo ra bức tường
nhiều lớp vừa cho gió xuyên qua, vừa che chắn được bức xạ mặt trời. Riêng hệ thống lam bê tông còn có tác dụng khuếch tán ánh sáng tự nhiên một cách đồng đều, thuận lợi cho người đọc.
Mái 2 lớp chống nóng, vươn xa hạn chế mưa tạt hiệu quả. Đối chiếu với kinh nghiệm xử lý kiến trúc trong ngôi nhà truyền thống, đây rõ ràng là những giải pháp điển hình, quen thuộc, thể hiện khả năng ứng phó linh hoạt của công trình dưới tác
động của môi trường khí hậu nhiệt đới, chứ không phải là kiểu đối phó cứng nhắc mà chúng ta thường thấy ở những ” hộp thép kính hiện nay. Nói cách khác, đó là việc áp dụng linh hoạt bài học kiến trúc truyền thống vào công trình hiện đại – biểu hiện của sự kết hợp yếu tố truyền thống và hiện đại trong công trình.
Nguồn: Blog Kiến Trúc
